熱海市上多賀・室内プール付豪華邸宅

熱海不動産 イーズ

  • 土地・戸建・マンションの売買・賃貸・管理・リフォーム・新築など不動産のことならイーズ(熱海駅前)へお任せ下さい

  • 0557-82-1212

物件詳細

熱海市上多賀・室内プール付豪華邸宅

  • 室内
  • 室内
  • リビング
  • リビング
  • 室内プール
  • 庭
  • 眺望
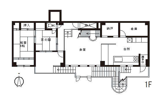
  • 1階間取り
  • 2階間取り
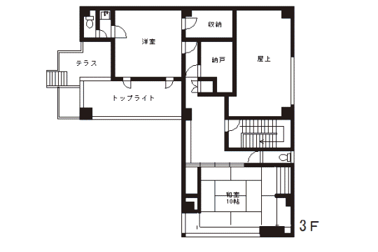
  • 3階間取り

海眺望,花火眺望,夜景眺望,海徒歩圏,駅徒歩圏,生活便利,南側道路,豪華リゾート,屋内プール,庭

網代湾を見おろす素晴らしい眺望の大型豪華邸宅です。2階部分にプールがついています。芝庭も広く解放感のある造りになっております。多賀網代海上花火を特等席でご覧になれます。

◆私道持分あり◆駐車スペース別途107㎡あり◆地勢:傾斜地

物件番号:
2kd-0001821
・・・・・主要経路
最寄駅:
伊豆多賀
アクセス:
駅歩:13分 
・・・・・敷地
所在地:
静岡県熱海市上多賀 
敷地面積:
680.98m2 (206坪)
都市計画:
非線引区域 
地目:
宅地 
用途地域:
無指定
防火地域:
法22・23条地域
風致地区:
指定無し
自然公園法:
指定無し
特別地区:
指定無し
他法制限:
がけ条例
前面道路:
幅員:4 m/南 側 
建ぺい率:
60%/容積率:200%
土地権利:
所有権 
・・・・・設備
水道:
公営水道 
電気:
東京電力 
ガス:
個別プロパン 
排水:
個別浄化槽 
・・・・・温泉
温泉:
不可 
・・・・・建物
構造:
鉄筋コンクリート造 
築年月日:
1992-05-01(平成4年)
総室数:
1戸
間取り:
5LDK+S 
延床面積:
349.97m2 (105.87坪)
駐車場:
現況:
居住中 
現況引渡:
相談 
内見可否:
可 
・・・・・管理費等
管理費:
無 
取引態様:
媒介 
Page Top