海眺望,初島眺望,温泉(可含),駅徒歩圏,庭
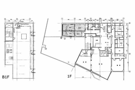
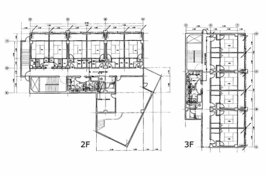
1R×12部屋、従業員室×4部屋、別棟8部屋の間取りです。男女別の大浴場や食堂など充実の設備。建物・庭園ともに管理が行き届いておりきれいです。リゾートを満喫できる空間。保養所としてはもちろん、宿泊施設など事業用物件をお探しの方にもおすすめです。
- 物件番号:
- 2kd-0002940
- ・・・・・主要経路
- 最寄駅:
- 熱海
- アクセス:
- 駅歩:10分
- ・・・・・敷地
- 所在地:
- 静岡県熱海市林ガ丘
- 敷地面積:
- 1773.08m2 (536.36坪)
- 都市計画:
- 非線引区域
- 地目:
- 宅地
- 用途地域:
- 第二種中高層住居専用地域
- 防火地域:
- 法22・23条地域
- 特別地区:
- 娯楽レクリエーション地区(2種)
- 建ぺい率:
- 60%/容積率:200%
- 土地権利:
- 所有権
- ・・・・・設備
- 水道:
- 公営水道
- 電気:
- 東京電力
- ガス:
- 都市ガス
- 排水:
- 本下水
- ・・・・・温泉
- 温泉:
- 付
- 名変料:
- 1,500,000円
- ・・・・・建物
- 構造:
- 鉄筋コンクリート・木造陸屋根・瓦葺
- 築年月日:
- 1974-02-01(昭和49年)
- 階数:
- 地上 5 階
- 間取り:
- 延床面積:
- 1515.67m2 (458.49坪)
- 駐車場:
- 有
- 現況:
- 空
- 現況引渡:
- 相談
- 内見可否:
- 可
- ・・・・・管理費等
- 管理費:
- 無
- 取引態様:
- 媒介















