海眺望,大島眺望,陽当り良好,リフォーム済み,山並眺望,別荘にも永住にも
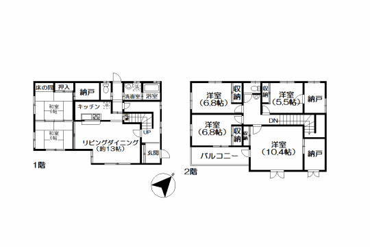
伊豆山地域の高台に建つ駐車場付きのこちらの邸宅。LDKはもちろん、南東面側の居室からも非日常感溢れる青い海と空の素晴らしい眺望をお楽しみいただけます。間取りはゆとりある6SLDKで、新築のように美しく生まれ変わりました。ご家族のライフスタイルや来客時にも柔軟に対応できます。新生活にふさわしい快適な住まいです。
- 物件番号:
- 2kd-0005322
- ・・・・・主要経路
- 最寄駅:
- 熱海/駅距離:3.9km(車:11分)
- アクセス:
- バス:19分/停歩:4分
- ・・・・・敷地
- 所在地:
- 静岡県熱海市伊豆山
- 敷地面積:
- 199.24m2 (60.27坪)
- 都市計画:
- 非線引区域
- 地目:
- 宅地
- 用途地域:
- 第二種中高層住居専用地域
- 建ぺい率:
- 60%/容積率:200%
- 土地権利:
- 所有権
- ・・・・・設備
- 水道:
- 公営水道
- 電気:
- 東京電力
- ガス:
- 個別プロパン
- 排水:
- 個別浄化槽
- ・・・・・温泉
- 温泉:
- 調査中
- ・・・・・建物
- 構造:
- 木造
- 築年月日:
- 2001-09-01(平成13年)
- 階数:
- 地上 2 階
- 間取り:
- 6LDK+S
- 延床面積:
- 158.42m2 (47.92坪)
- 駐車場:
- 有
- 現況:
- 空
- 現況引渡:
- 相談
- 内見可否:
- 可
- ・・・・・管理費等
- 管理費:
- 無
- 取引態様:
- 媒介














