陽当り良好,純和風
四季の移ろいをそのまま受け止める、茅葺屋根の古民家のご紹介です。太く力強い梁、時を重ねて艶を帯びた柱や床板。玄関をくぐった瞬間、木の香りとやわらかな光に包まれ、時間がゆっくりと流れるような室内。茅葺屋根は、夏は涼しく冬はあたたかいという優れた断熱性を持ち、日本の風土に寄り添ってきた伝統建築。広々とした土間は、カフェやギャラリー、アトリエなど多用途に活用可能。敷地は約287坪あり、2LDKにガレージ付きの別棟がございます。週末のセカンドハウスとしても宿泊施設や店舗としての活用も期待できる一棟です。
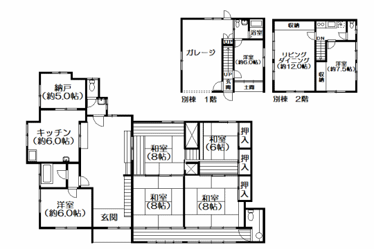
♦母屋:構造 木造草茅葺平屋建 築年不詳(明治初期と言われております)♦別棟は未登記(延床92.74㎡)間取り 2LDK+ガレージ ♦容積率160%(前面道路幅員による制限のため)♦土砂災害警戒区域(土石流)・洪水浸水想定区域(千歳川)
- 物件番号:
- 2kd-0005387
- ・・・・・主要経路
- 最寄駅:
- 湯河原/駅距離:1.6km
- アクセス:
- 駅歩:20分/バス:9分/停歩:2分
- ・・・・・敷地
- 所在地:
- 静岡県熱海市泉
- 敷地面積:
- 950.39m2 (287.49坪)
- 都市計画:
- 非線引区域
- 地目:
- 宅地
- 用途地域:
- 第二種中高層住居専用地域
- 防火地域:
- 法22・23条地域
- 特別地区:
- 娯楽レクリエーション地区(2種)
- 他法制限:
- がけ条例,宅地造成等規制法
- 前面道路:
- 幅員:3.9 m/北 側
- 建ぺい率:
- 60%/容積率:200%
- 土地権利:
- 所有権
- ・・・・・設備
- 水道:
- 公営水道
- 電気:
- 東京電力
- ガス:
- 個別プロパン
- 排水:
- 本下水
- ・・・・・温泉
- 温泉:
- 不可
- ・・・・・建物
- 構造:
- 階数:
- 地上 1 階
- 間取り:
- 5K+S
- 延床面積:
- 122.31m2 (37坪)
- 駐車場:
- 有
- 現況:
- 空
- 現況引渡:
- 相談
- 内見可否:
- 可
- ・・・・・管理費等
- 管理費:
- 無
- 取引態様:
- 媒介













