海眺望,管理人,日当り抜群,豪華リゾート
南向きのため陽あたり良好です。公共施設も充実しており、当マンションから約5分ぐらい散歩にちょうど良い距離に熱海の観光名所「熱海梅園」があります。
○組合運営費:150円○取引形態/媒介
- 物件番号:
- 4ms-0000769
- ・・・・・主要経路
- 最寄駅:
- 来宮/駅距離:1.6km(車:3分)
- アクセス:
- ・・・・・その他経路
- 最寄駅:
- 熱海/駅距離:4km(車:6分)
- アクセス:
- ・・・・・敷地
- 所在地:
- 静岡県熱海市梅園町
- 敷地面積:
- 4346.4m2 (1314.79坪)
- 都市計画:
- 非線引区域
- 地目:
- 宅地
- 用途地域:
- 無指定
- 防火地域:
- 法22・23条地域
- 風致地区:
- 指定無し
- 自然公園法:
- 指定無し
- 特別地区:
- 指定無し
- 他法制限:
- がけ条例
- 土地権利:
- 所有権
- ・・・・・設備
- 水道:
- 公営水道
- 電気:
- 東京電力
- ガス:
- 排水:
- 本下水
- ・・・・・温泉
- 温泉:
- 不可
- ・・・・・建物
- 建物名称:
- エムロード熱海
- 構造:
- 鉄筋コンクリート造
- 築年月日:
- 1991-11-30(平成3年)
- 総室数:
- 67戸
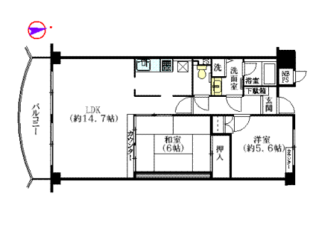
- 間取り:
- 2LDK
- 室位置:
- 9階建ての 3階
- バルコニー:
- 8.48m2 (2.57坪)
- 専有面積:
- 60.57m2 (18.32坪)
- ペット:
- 不可
- 駐車場:
- 有/費用:1,000円/日
- 現況:
- 空
- 現況引渡:
- 相談
- 内見可否:
- 可
- ・・・・・管理費等
- 管理費:
- 30,290円/月
- 修繕積立金:
- 7,580円/月
- その他:
- 水道基本料:5,110円/
- 取引態様:
- 媒介










