海眺望,初島眺望,管理人,日当り抜群,豪華リゾート,温泉大浴場,屋外プール
所在階はA棟と最上階。正面エントランスから入らないで脇の屋外階段から出入り出来ます。室内はリフォームしクリーニングしてますのでフローリングもワックスが効いていてピカピカです。家具一部お譲り致します
※料金関係:水道基本料3,990円/月 有線使用料950円/月〇取引形態/媒介
- 物件番号:
- 4ms-0001006
- ・・・・・主要経路
- 最寄駅:
- 熱海(車:4分)
- アクセス:
- ・・・・・敷地
- 所在地:
- 静岡県熱海市林が丘町
- 都市計画:
- 非線引区域
- 地目:
- 宅地
- 用途地域:
- 無指定
- 防火地域:
- 準防火地域
- 風致地区:
- 指定無し
- 自然公園法:
- 指定無し
- 特別地区:
- 指定無し
- 他法制限:
- がけ条例
- 土地権利:
- 所有権
- ・・・・・設備
- 水道:
- 公営水道
- 電気:
- 東京電力
- ガス:
- 都市ガス
- 排水:
- 本下水
- ・・・・・温泉
- 温泉:
- 付
- ・・・・・建物
- 建物名称:
- ラヴィ熱海 A棟
- 構造:
- 鉄筋コンクリート造
- 築年月日:
- 1990-10-28(平成2年)
- 総室数:
- 124戸
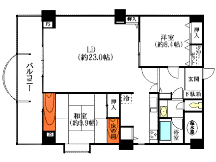
- 間取り:
- 2LDK
- 室番号:
- 702
- 室位置:
- 18階建ての 7階
- バルコニー:
- 13.72m2 (4.15坪)
- 専有面積:
- 100.8m2 (30.49坪)
- ペット:
- 不可
- 駐車場:
- 有
- 現況:
- 調査中
- 現況引渡:
- 相談
- 内見可否:
- 調査中
- ・・・・・管理費等
- 管理費:
- 53,835円/月
- 修繕積立金:
- 5,550円/月
- 取引態様:
- 媒介











