海徒歩圏,市街地,平坦地,駅徒歩圏,生活便利
コンビニや大型スーパー徒歩圏で生活便利な立地の戸建賃貸物件です。収納豊富、浴室追炊き機能や乾燥機能、IHヒーターキッチン、各階トイレ、バルコニーシンク、インターホン、バリアフリーと充実の設備です。賑やかな繁華街エリアですので、利便性をお求めの方にお勧めです。
◆喫煙、ペット、楽器不可
- 物件番号:
- 2kd-0000222
- ・・・・・主要経路
- 最寄駅:
- 熱海
- アクセス:
- 駅歩:16分
- ・・・・・賃貸料金等
- 家賃:
- 170,000 円
- 敷金:
- 1 ヶ月
- 礼金:
- 1 ヶ月
- 保証会社:
- 加入要
- 火災保険:
- 加入要
- ・・・・・敷地
- 所在地:
- 静岡県熱海市銀座町
- 土地権利:
- 所有権
- ・・・・・設備
- 水道:
- 公営水道
- 電気:
- 東京電力
- ガス:
- 都市ガス
- 排水:
- 本下水
- ・・・・・温泉
- 温泉:
- 不可
- ・・・・・建物
- 建物名称:
- 熱海市銀座町貸家
- 構造:
- 木造
- 築年月日:
- 1952-12-01(昭和27年)
- 賃貸種類:
- 一般借家
- 契約期間等:
- 2年
- 階数:
- 地上 3 階
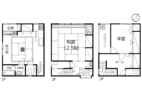
- 間取り:
- 3K
- 延床面積:
- 97.61m2 (29.53坪)
- ペット:
- 不可
- 駐車場:
- 無
- 現況:
- 空
- 引渡し:
- 相談
- 内見可否:
- 可













